














| Betreuer | Natalie Frost |
| interne Objekt-ID | L-F-9 |
| Objektart Haus | Haus |
| Objekttyp | Mehrfamilienhaus |
| Etagenzahl | 4 |
| Baujahr | 1900 |
| Zustand allgemein | Saniert |
| Ausstattung | Normal |
| Bauweise | Massiv |
| Stuck | Ja |
| Balkon | Ja |
| Boden | Laminat |
| Fahrstuhl | kein Fahrstuhl |
| Befeuerung | Gas |
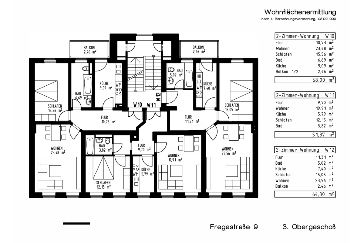
| Wohnfläche | ca. 880 m² |
| Gesamtfläche | 880 |
| Wohneinheiten | 15 |
| Vermietbare Fläche | ca. 880 m² |
| Straße | Fregestr. |
| Hausnummer | 9 |
| PLZ | 04105 |
| Ort / Bezirk | Leipzig / Zentrum-Nordwest |
| Außen-Provision | ja |
Der Großteil der Wohnungen vom EG bis in die 3 Etage hat
einen Balkon in den grünen und ruhigen Innenhof, das ausgebaute
Dachgeschoß hat keine Terrassen. Die klassischen Altbau-Stielelemente
wie Stuckfassade und Natursteinsockel wurden fachgerecht aufgearbeitet,
die Fenster wurden ausgetauscht und sind aus Holz mit Isolierverglasung.
Stuck in den Wohnräumen ist vorhanden. Es gibt 9 Stellplätze im
Innenhof, sowie eine Spielfläche für Kinder.
*
The majority of the flats from the ground floor to the third floor
have a balcony facing the green and quiet inner courtyard, the converted
attic floor has no terraces. The classic old building elements such as
the stucco façade and natural stone base have been professionally
refurbished, the windows have been replaced and are made of wood with
double glazing. Stucco in the living rooms is present. There are 9
parking spaces in the courtyard, as well as a play area for children.
Der Gründerzeitaltbau wurde 1996 - 2000 vollständig und hochwertig saniert, sowie das Dachgeschoß ausgebaut, der Anbau von Balkonen erfolgte Hofseitig. Der allgemeine Zustand ist sehr gepflegt.
Alle weiteren Angaben und Unterlagen erhalten Sie gerne auf Anfrage.
*
The Wilhelminian style building was completely renovated in 1996 - 2000 to a high standard, the attic was extended and balconies were added on the courtyard side. The general condition is very well maintained.
All further details and documents are available on request.
Das Waldstraßenviertel gilt als eines der größten und am besten erhaltenen Stadtvierteln aus der Gründerzeit und zählt zu den schönsten und beliebtesten Stadtteilen von Leipzig mit unmittelbarer Nähe zum Zentrum und dem Rosental.
Die Waldstraße bietet zahlreiche Einkaufsmöglichkeiten und hervorragende Restaurants. Die Verkehrsanbindung ist aufgrund der zentralen Lage mit den öffentlichen Verkehrsmitteln ausgezeichnet. Neben dem weltbekannten Leipziger Zoo befinden sich das Mückenschlösschen und die Red Bull Arena in fußläufiger Nähe.
*
The Waldstraßenviertel is considered one of the largest and best-preserved districts from the Wilhelminian period and is one of the most beautiful and popular districts in Leipzig, with close proximity to the city centre and the Rosental.
Waldstraße offers numerous shopping opportunities and excellent restaurants. The transport links are excellent due to the central location by public transport. In addition to the world-famous Leipzig Zoo, the Mückenschlösschen and the Red Bull Arena are within walking distance.
Das Haus wurde aufgeteilt, mögliche freie Einheiten werden vom Verkäufer vorgehalten und kommen nicht in die Neuvermietung.
*
The house has been partitioned, possible vacant units are being held by the seller and will not be re-let.
Courtage und Geschäftsbedingungen bei Baugrundstücken, Gewerbeobjekten und Mehrfamilienhäuser:
Es gilt ein vom Käufer an uns zu entrichtendes Vermittlungs- bzw. Nachweishonorar (Maklercourtage) bei Abschluss des Kaufvertrages in Höhe von 6 % (zzgl. gesetzl. MwSt.) auf den tatsächlichen Kaufpreis als vereinbart.
Die im Exposé enthaltenen Daten wurden von uns nach Angaben des Auftraggebers zusammengestellt und dienen lediglich zur Orientierung im Vorfeld einer Besichtigung und sind vom Käufer gegebenen Falls am Objekt zu überprüfen. WAI Sales und Service GmbH übernimmt keine Gewähr für die Richtigkeit der gemachten Angaben, ein Zwischenverkauf bleibt vorbehalten.
Unsere Angebote sind nur für den Empfänger selbst bestimmt. Bei einer Weitergabe an Dritte haftet der Angebotsempfänger für unsere Courtage.
Brokerage fees and terms and conditions:
A brokerage or proof fee (brokerage fee) to be paid to us by the buyer upon conclusion of the purchase contract in the amount of 6 % (plus VAT) on the actual purchase price is deemed to be agreed.
The data contained in the exposé were compiled by us according to the information provided by the client and serve only as orientation in the run-up to a viewing and are to be checked by the buyer at the property if necessary. WAI Sales und Service GmbH does not assume any liability for the correctness of the information provided, subject to prior sale.
Our offers are only intended for the recipient himself. In the event of a transfer to third parties, the recipient of the offer is liable for our brokerage fee.